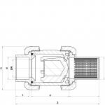
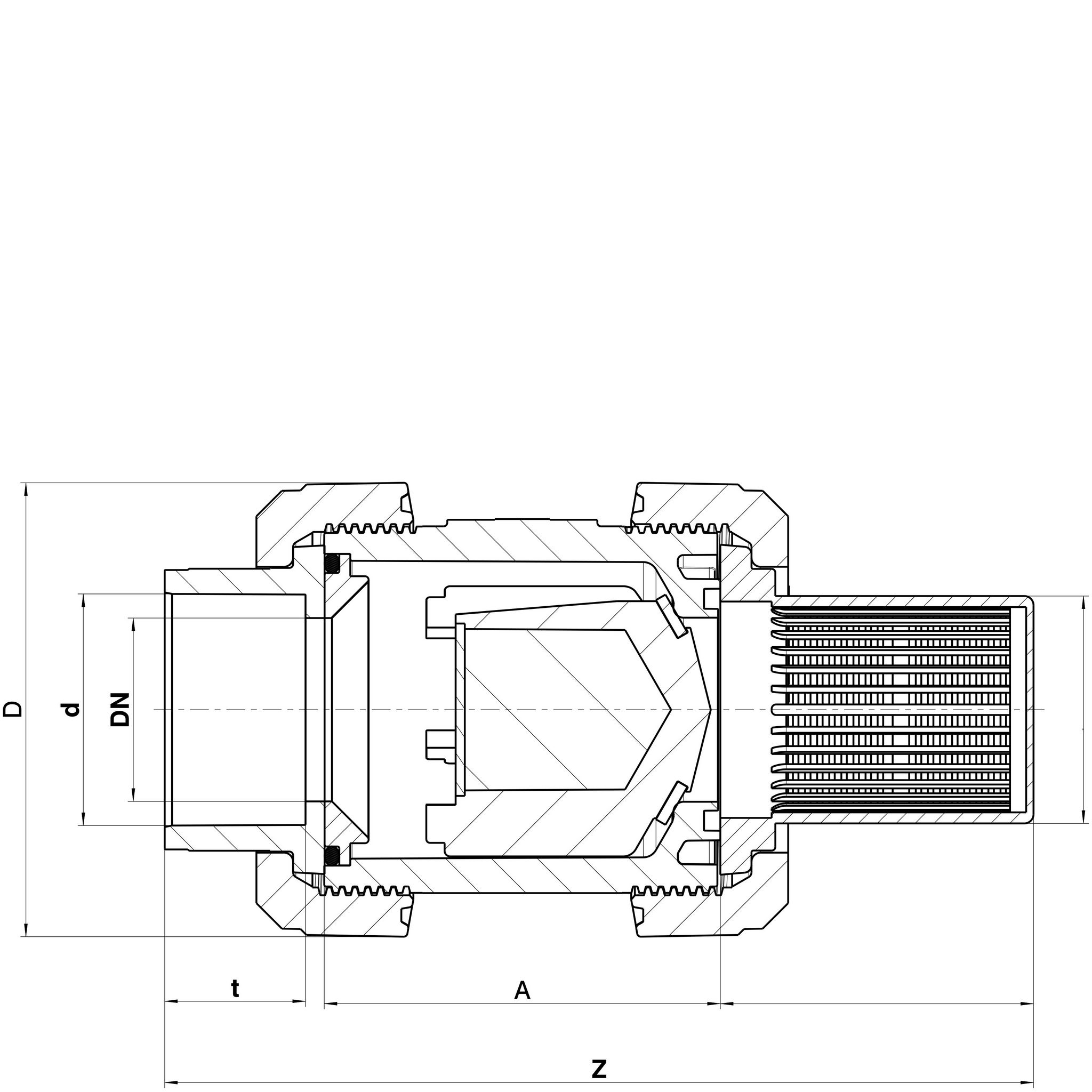
FVIU-E

Bottenventil inv lim EPDM

  • PVC-backventil/bottenventil
  • Med sil
  • Invändig lim
  • EPDM
Visa alla mått +
Artikelnummer RSK dDNDAZtFiler
FVIU-E-016 1610536267,5–7114,5–16,5 CAD/Step
FVIU-E-020 4294963 2015536267,5–7114,5–16,5 CAD/Step
FVIU-E-025 4842761 2520637076–7917–19,5 CAD/Step
FVIU-E-032 4294964 3225707481–8419,5–22,5 CAD/Step
FVIU-E-040 4842762 4032858490–9622–26,5 CAD/Step
FVIU-E-050 4294965 504010195104–11425–31,5 CAD/Step
FVIU-E-063 4842763 6350121.5109121–13429–38,5 CAD/Step
FVIU-E-075 4842764 7565155137148–16234,5–45 CAD/Step
FVIU-E-090 4842765 9080188163183–21138,5–55,5 CAD/Step
FVIU-E-110 4842766 11080188163176–20744–64 CAD/Step
Datablad

Materialegenskaper