Hem / Produkter / Ventilation / Ventilationsrördelar / ULM
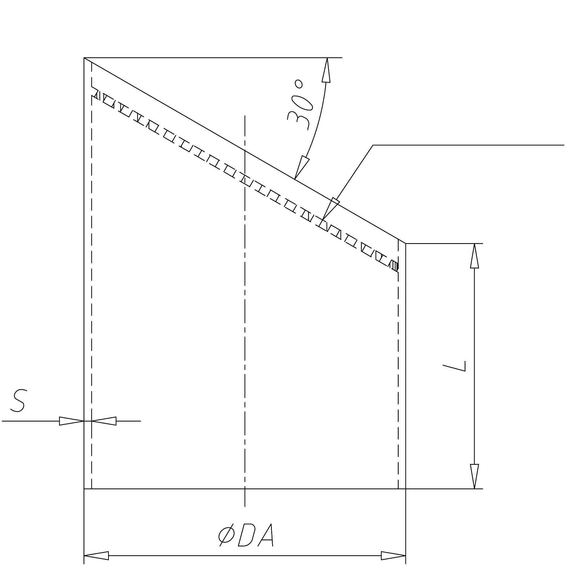
PPs Utluftningsgaller
”*” anger obligatoriska fält
E-postadress
Lösenord
Kom ihåg mig