ODS-GAP

PP/Stål-lösfläns

  • PP/Stål Lösfläns
  • Med innerhål anpassad för GAP-kraghylsor
  • Se PN för vatten vid +20 °C under modeller
  • Formsprutad
  • DN20-DN80 borrad enligt DIN PN10/16
  • DN500 borrad enligt DIN PN10
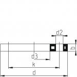
Visa alla mått +
Artikelnummer RSK da(OD)dd3bDNPNd2kFiler
ODS-GAP-025 25108401420161475
ODS-GAP-032 3211550.51425161685
ODS-GAP-040 401406018321618100
ODS-GAP-050 5015068.518401618110
ODS-GAP-063 6316582.518501618125
ODS-GAP-075 7518695.518651618145
ODS-GAP-090 90202111.518801620160
ODS-GAP-140 140250160.5241251618210
ODS-GAP-315 315463344343001623400
ODS-GAP-355 355515388423501622.5460
ODS-GAP-400 400574442464001626515
ODS-GAP-500 500678545265001045620
ODS-GAP-630 30789650506001030725
Datablad