BIRXC-V

Union invlim/utvgänga FPM

  • CPVC Unionkoppling
  • Vatten PN10 vid +20 °C
  • Se teknisk information för tillåtna tryck vid högre temperaturer
  • O-ring i FPM
  • Invändig lim/Utvändig gänga
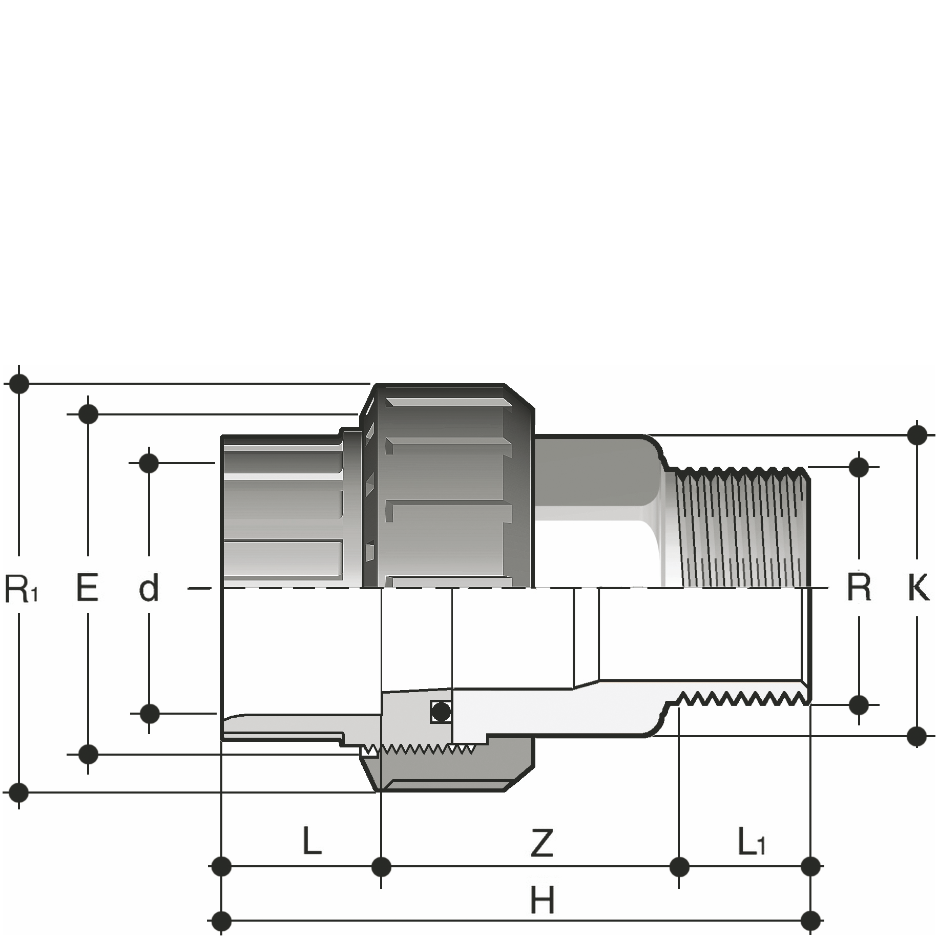
Visa alla mått +
Artikelnummer RSK dxRR1L1ZLHKEFiler
BIRXC-V-016-R010 16x3/8"3/4"10.5341458.52033
BIRXC-V-020-R015 20x1/2"1"13.535.516652541
BIRXC-V-025-R020 25x3/4"1¼"1538.51972.53250
BIRXC-V-032-R025 32x1"1½"17.540.522803858
BIRXC-V-040-R032 40x1¼"2"19.545.526914872
BIRXC-V-050-R040 50x1½"2¼"19.550.5311015579
BIRXC-V-063-R050 63x2"2¾"2460.538122.56998
Datablad

Materialegenskaper